Bilocale con cantina - No condominio

Bilocale con cantina - No condominio

In vendita
Pisogne - Via Dei Monti
155.000 €
vista
Appartamento
Categoria
58,5
m2
2
Locali
1
Camere
1
Bagni
Descrizione
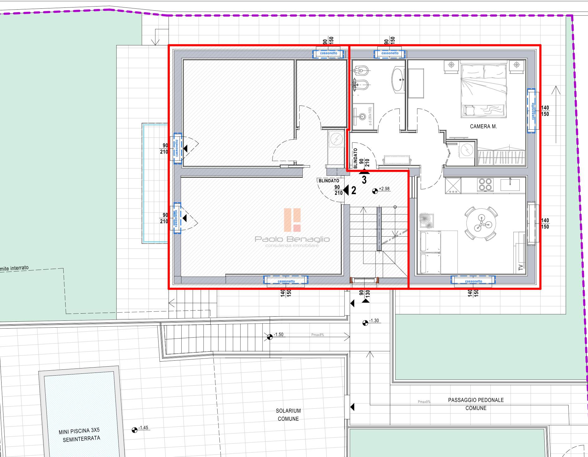
Nella zona della Pieve, proponiamo in vendita nuovissimo bilocale in piccola palazzina di sole quattro unità immobiliare. L'appartamento, composto da disimpegno d'ingresso che conduce alla cucina abitabile, la camera matrimoniale e al bagno. Possibilità di personalizzare finiture. Completa la proprietà una cantina al piano seminterrato. Termoautonomo. La residenza dipone poi di un solarium comune con mini piscina seminterrata.
Caratteristiche principali
Codice:
V000788
Città:
Pisogne
Categoria:
Appartamento
Locali:
2
Camere:
1
Bagni:
1
Mq:
58,5
Anno ristrutturazione:
2026
Classe energetica:
A
Stato Immobile:
In Costruzione
Grado:
Medio
Posizione:
Lago
Panorama:
Vista Aperta
Lati Liberi:
3
Giardino:
No
Arredi:
Non Arredato
Tipo Soggiorno:
Soggiorno
Tipo Cucina:
A Vista
Riscaldamento:
Autonomo
Tipo Riscaldam.:
Pompa di Calore
Tipo Impianto:
Aria
Fonte Energetica:
Elettrico
Acqua Calda:
Autonoma
Raffrescamento:
Split
Infissi:
Legno Doppio Vetro
Serramenti:
Nuovo
Persiana:
Tapparella Metallo
Pavim. Giorno:
Gres Porcellanato
Pavim. Notte:
Gres Porcellanato
Pavim. Cucina:
Gres Porcellanato
Pavim. Bagno:
Gres Porcellanato
Accesso Disabili:
No
Accesso interno disabili:
Non accessibile
Isolamento:
Presente
Isolamento termico:
Cappotto esterno
Isolamento acustico:
Isolamento pavimento
Spessore cappotto (cm):
14
Accessori
Doppi Vetri
Impianto Fotovoltaico
Passaggio Pedonale
Piscina
Porta Blindata
Mappa
Cookie preference