Nuovo bilocale con cantina - NO CONDOMINIO

Nuovo bilocale con cantina - NO CONDOMINIO

In vendita
Pisogne - Via dei monti
170.000 €
vista
Appartamento
Categoria
64,89
m2
2
Locali
1
Camere
1
Bagni
Descrizione
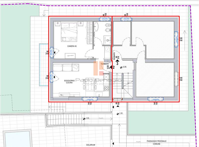
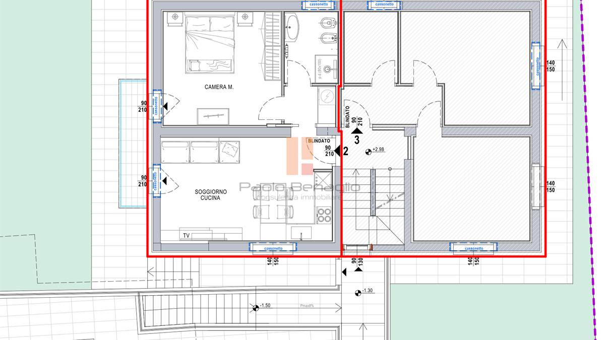
Nella zona della Pieve, proponiamo in vendita nuovissimo bilocale in piccola palazzina di sole quattro unità immobiliare. L'appartamento, composto da disimpegno d'ingresso che conduce alla cucina abitabile, la camera matrimoniale e al bagno. Possibilità di personalizzare finiture. Completa la proprietà una cantina al piano seminterrato. Termoautonomo. La residenza dipone poi di un solarium comune con mini piscina seminterrata.
Caratteristiche principali
Codice:
V000787
Città:
Pisogne
Categoria:
Appartamento
Locali:
2
Camere:
1
Bagni:
1
Mq:
64,89
Balconi:
1
Piano:
1
Classe energetica:
A
Stato Immobile:
In Costruzione
Grado:
Medio
Posizione:
Lago
Panorama:
Vista Aperta
Lati Liberi:
3
Giardino:
No
Arredi:
Non Arredato
Tipo Soggiorno:
Soggiorno
Tipo Cucina:
A Vista
Riscaldamento:
Autonomo
Tipo Riscaldam.:
Pompa di Calore
Tipo Impianto:
Aria
Fonte Energetica:
Elettrico
Acqua Calda:
Autonoma
Raffrescamento:
Split
Infissi:
Legno Doppio Vetro
Serramenti:
Nuovo
Persiana:
Tapparella Metallo
Pavim. Giorno:
Gres Porcellanato
Pavim. Notte:
Gres Porcellanato
Pavim. Cucina:
Gres Porcellanato
Pavim. Bagno:
Gres Porcellanato
Accesso Disabili:
No
Accesso interno disabili:
Non accessibile
Isolamento:
Presente
Isolamento termico:
Cappotto esterno
Isolamento acustico:
Isolamento pavimento
Spessore cappotto (cm):
14
Destinato a residenti:
Si
Accessori
Aria Condizionata
Impianto Fotovoltaico
Pannelli Solari
Passaggio Pedonale
Piscina
Porta Blindata
Mappa
Planimetrie
Cookie preference