Quadrilocale a piano terra con giardino.

Quadrilocale a piano terra con giardino.

In vendita
Pisogne - Via Dei Monti
385.000 €
Photo 1
Appartamento
Categoria
145,42
m2
4
Locali
3
Camere
1
Bagni
Descrizione
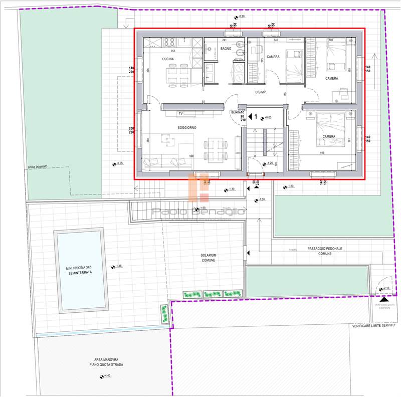
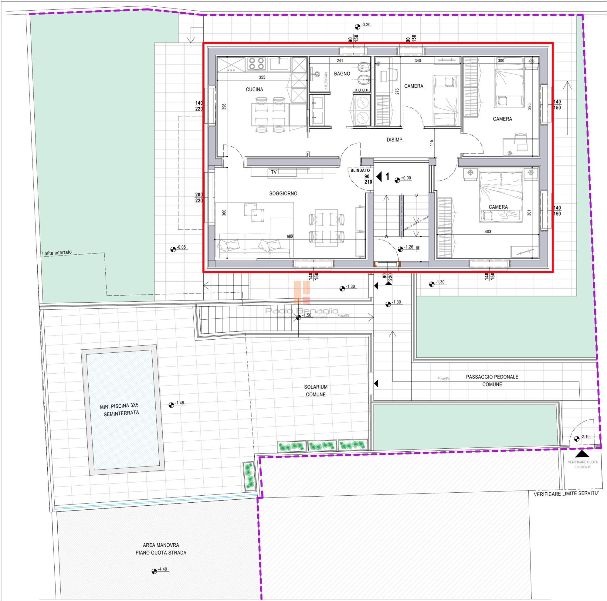
Nella zona della Pieve, a due passi da tutti i servizi di paese, proponiamo in vendita nuovissimo spazioso quadrilocale a piano terra con giardino in piccola palazzina di sole quattro unità immobiliari. L'appartamento è composto da soggiorno, cucina abitabile, disimpegno, tre camere e bagno. Dalla zona giorno è possibile accedere al terrazzo esterno e giardino esclusivo. Completano la proprietà una comoda cantina e un ampio box auto. La residenza dipone poi di un solarium comune con mini piscina seminterrata.
Caratteristiche principali
Codice:
V000786
Città:
Pisogne
Categoria:
Appartamento
Locali:
4
Camere:
3
Bagni:
1
Mq:
145,42
Mq Box:
22,75
Mq Giardino:
140
Anno:
1960
Classe energetica:
A
Stato Immobile:
In Costruzione
Grado:
Medio
Posizione:
Lago
Panorama:
Vista Aperta
Lati Liberi:
4
Giardino:
Privato
Arredi:
Non Arredato
Tipo Soggiorno:
Soggiorno
Tipo Cucina:
Abitabile
Riscaldamento:
Autonomo
Tipo Riscaldam.:
Pompa di Calore
Tipo Impianto:
Pavimento
Fonte Energetica:
Elettrico
Acqua Calda:
Autonoma
Raffrescamento:
Split
Infissi:
Legno Doppio Vetro
Serramenti:
Nuovo
Persiana:
Tapparella Metallo
Pavim. Giorno:
Gres Porcellanato
Pavim. Notte:
Gres Porcellanato
Pavim. Cucina:
Gres Porcellanato
Pavim. Bagno:
Gres Porcellanato
Accesso Disabili:
No
Accesso interno disabili:
Non accessibile
Isolamento:
Presente
Isolamento termico:
Cappotto esterno
Isolamento acustico:
Isolamento pavimento
Spessore cappotto (cm):
14
Destinato a residenti:
Si
Accessori
Pannelli Solari
Passaggio Pedonale
Piscina
Porta Blindata
Mappa
Distanze
Posizione
Centro150 m
Lago250 m
Parco pubblico50 m
Istruzione
Scuola materna400 m
Scuola elementare400 m
Scuola media400 m
Mezzi di trasporto
Colonnina EV150 m
Porto300 m
Stazione dei treni400 m
Planimetrie
Cookie preference